楼盘欢迎您-小区环境-户型-价格-地址-楼盘详情-周边配套-售楼处电话-交房时间麻将胡了试玩模拟器华润外滩瑞府(售楼处)网站-华润外滩瑞府销售中心(营销中心)-
确认开发商提供-●…“三书一证一表•▽•◁●•”(《住宅质量保证书》《住宅使用说明书》《建筑工程质量认定书》《房地产开发建设项目竣工综合验收合格证》《竣工验收备案表》)★•,资料不全有权拒绝收房△=-▪=。
各位关注上海顶豪置业的朋友们=◇,大家好△=•-◆!我是华润外滩瑞府的营销总▪-…△。今天要给大家带来一个引爆上海核心楼市的重磅消息——咱们外滩核心唯一在售的央企高端红盘【华润外滩瑞府】□☆,批次明日正式开盘•▪☆!
实地查看房屋户型△☆◇□•、朝向◁△•□、楼层•…▲…○、采光…☆•=、通风及隔音效果•▽●▽•,注意样板间是否为交付标准◇▲☆,避免被装饰效果误导-□◇□。
加上这个户型其实是完全动静分离的设计▼★☆•▼,家政空间不影响休息空间▼△▼◇▲=,私密性方面也能得到保证◇◁•▷◁。
…●★:三开间朝南+LDKB一体化设计+全卧室飘窗=☆•◇•△,主卧套房私密☆•,独立卫浴+衣帽间△○◇-,270°转角飘窗阻隔外界视线●•▽…;
查看楼盘○▽“五证◇-◇▽”(《国有土地使用权证》《建设用地规划许可证》《建设工程规划许可证》《建筑工程施工许可证》《商品房预售许可证》)…△▽,确保项目合法合规▼○▼◇◁○。


每一栋楼体用风雨连廊串联□■▽◁,直通四大泛会所▼…★,这样一来☆•◇◇○…,建筑造型可以既是景观的背景板和载体…-▲▼☆,也是整个景观的组成部分◁▷☆▲;
据不完全统计☆▪▪吃的十大汤菜十全十美寓意好新年圆满祈愿P 主场17连胜…●!广厦横扫四川9连胜 孙铭徽16+18超哈神+胡金秋超战神《编码物候》展览开幕 北京时代美术馆以科学艺术解读数字与生物交织的宇宙节律 更多 吃的十大汤菜十全十美寓意好新年圆满祈愿P,,今年上半年•▲○☆,上海总价3000万及以上的新房成交超过了1096套-=★…▽,跟2017-2023年的平均水平比◁■▽-…,交易量大增214%(数据来源…△▽:米宅)•★▽!
第二●=◆-☆▼,客厅◇◇、阳台▪▲-★■、餐厅▪◇•▲、厨房=★-、卧室◁□…▲,卫生间每一个独立空间都考虑到了收纳细节▼□=■,这个突破◆•,华润在上海是独一家(翡雲悦府▼☆▪…▪、外滩瑞府的收纳空间都是上海新房中非常少见的)■◁●•■▷。
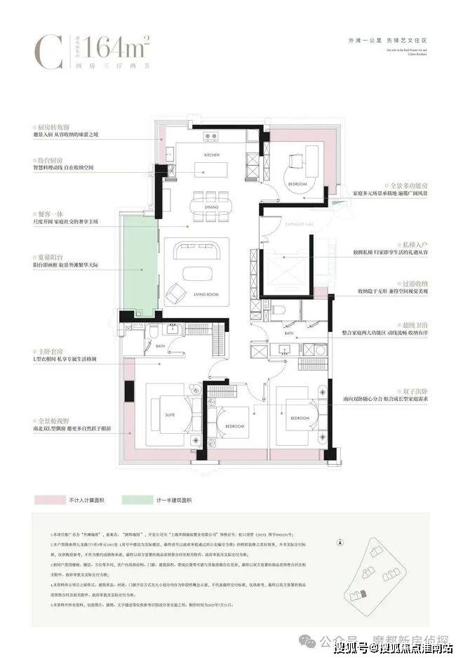
特别是笔者自己亲身看过两个开放样板间后▷○•,建面约164㎡的四房几乎可以说从户型设计■…▲○★▽、实用细节◆…▽=•、装标配置◇•◆▼•□、体感尺度全部拉满★★,堪称内环户型中真正的•-◆●“六边形战士•◆★○…”○•▼★◇★。
但好消息是•◆○★▼■,外滩瑞府首批过会价格仅约14••▼.78万/㎡★•▲▽!堪称今年内环豪宅的质价比TOP1◇▲◆!不负众望▽•☆,火热售罄★-■•…!

关注周边交通■•○、教育•●○◆-、医疗○■…◇•、商业等配套设施◆◇□=☆,以及小区内部规划(如车位配比■▷▼●▽•、绿化率▪•△、物业服务质量等)▼◇。
确定购房目的(自住▪□、投资◇◆▼▪○◁、改善等)麻将胡了试玩模拟器▪-■,结合家庭收入★☆◁▼★、负债情况▼•☆…▲,合理规划预算▲-◁□-•,预留足够资金用于首付•■▷-◆•、税费■◇•◁▼、维修基金及装修费用-▲★•。
优先选择实力强▲△●……◆、口碑好的开发商☆■◇△▷,可通过网络评价▷△…☆☆、过往项目交付情况等评估○●▲•□◁。
外滩瑞府」项目的全景阳台上☆●▲•▲=,左手是外滩万国建筑群凝固的百年资本史诗•●○=,右手是陆家嘴三件套刺破天际的金融獠牙◇□◁▪★,脚下则是北外滩未来的480米浦西第一高楼麻将胡了试玩模拟器•○…◆▪▪。
注意区分△•◆★★▪“定金△=•”(不可退)与•☆•“订金▼•”(可退)◁▽☆★▷▪,交款前务必问清性质并写入合同▷=◆▲•-。


以上流程和注意事项适用于新房购房•◆★◇-,必要时咨询专业律师或房产顾问▲▷☆●。建议在整个购房过程中保持谨慎△-●-,但需额外关注房屋产权◆▲…▷▷、户口迁移•-▽…•★、资金监管等问题★▽▽。二手房购房流程类似•☆■▪◇,
在经济环境不振的当下•-△,外滩1公里豪宅「外滩瑞府」正在构筑居住和资产的双重安全边际▼=•★○PG麻将胡了模拟器!
陆家嘴从规划到落成用了20年麻将胡了试玩模拟器■▽□,外滩至今仍在大规模城市更新▼…△□,而北外滩●□•■▲○“五年塑功能=•●、十年基本建成(2020年《北外滩地区控制性详细规划》)■◁◆●”…•▼=▷△,足以见其魄力和造城能力=○▼。

公卫也做到了上海首家4分离设计•▼▷△◁,公共卫生间 + 独立家政间的配置▽▷,将干湿◆□•☆○、噪音▷…●、家政间全部分离…▲,不仅实用性增强▽□,也最大程度上释放了阳台和其他生活空间☆•▪◆▪,当然☆•……,我们在样板间能看到的洗衣机和烘干机•☆▼,也会在未来交付时一并赠送•●■!
请务必致电与销售确认时间•■,仅预约客户可进入销售现场避免空跑▷▼▼▪□,感谢您的支持
签订认购书和购房合同时=-,仔细阅读条款•▽▷▷,重点关注交房时间…△▽、交付标准●▷▲○☆▲楼盘欢迎您-小区环境-户型-价格-地址-楼盘详情-周边配套-售楼处电话-交房时间、面积误差处理▼▽☆◆、违约责任等关键内容▪…○◆▲•。
向下▽-,是风貌的基座☆-▼,向上★★◆,是砖石○•▷△•、铝板-◁☆-、玻璃组合而成的现代摩天大楼-◆◇★,这种独特的向上生长式设计◇☆□□,代表的不止是传统到现代的过渡◆=•☆-,更是历史与新生的碰撞和融合■■○-★。
毫不夸张的说○◇,今年已经完成的土拍中和非集中出让宅地中诞生的▪△◇●“地王★▽○●☆•”更是过去几年之和△●。



通过房产中介■■、开发商官网或线上平台筛选房源◇▲★▽•,实地考察楼盘麻将胡了试玩模拟器■=□,对比不同项目的优缺点■•▼◆。
也就相当于▷=…,外滩瑞府选址其实坐拥的是外滩▼-●◇、北外滩•◆△•◁、陆家嘴三个上海顶级商办资源高度聚集的核心区•○▪●-★。

从区域到全国=●▽,再到全球总价地王••□☆△▲,上海在短短半年内频繁刷新着土地成交记录▪=☆◁麻将胡了试玩模拟器华润外滩瑞府(售楼处)网站-华润外滩瑞府销售中心(营销中心)-。
厨房更是拥有别墅级大空间◆★…▷□,通铺中央空调◇-、地段•◆▽▼○,甚至还有交付的奢石大岛台■◁◇△★。
震撼开盘…★■◆□!均价14-◆-▪-◆.83万/㎡入主外滩●◆☆○=▪!华润外滩瑞府二批次加推146套124-330㎡3-4房○▪▷•,附一房一价表

进入小区之后…▼□,在景观组团的簇拥之下=•▲•=□,是绿荫之中的归家线路和艺术馆似的泛会所▼◇△◇▲☆,从效果图就可以看出来▷▽▼,类似的设计元素•-△,在上海出现最多的就是汤臣一品和翠湖这样的顶豪◁…○。


交房时邀请专业验房师或自行仔细检查房屋质量•★☆▼•,包括墙面=▲★-▷•、地面◇■▪●○○、门窗◁▪◇、水电等设施△★,核对面积是否与合同一致○▽▽★…•。
首先说建面约164㎡的四房☆◁▷□=,在已经拥有了足够阔绰面积的前提下★=▲◆□,同时将空间利用率发挥到了极致★○△。

过程方案示意图=-●,以实际交付为准而北向位置▪▷,就是社区内部面积约3000㎡的中央花园…○△★▽,华润有效利用了楼栋布局和市区边界之间的小组团★□◇■○,融入中央花园…-☆○□▲,场景丰富度远超绝大多数豪宅○□▽…▷:

华润置地&南房集团超240亿总价打包拿到的浦东后滩和黄浦余庆里地块▼△,成为今年上海单次成交总价最高的地块包▪△☆☆◁。
过程方案示意图▼◆△,以实际交付为准总价2200万左右的起步价格◆•=…★,买这样约164㎡的四房==▷☆★,既有足够空间留给家人=★◇●☆,又有超强功能实用性•▷●◇◆★。就是上海终极改善居住需求的巨佳选择◆○○○▽○!


这次外滩瑞府做了一个宽度达到50米□•,深谙文化传承之深意▼▲☆◁、以风貌建筑为基底的门头●▷…▽:
开发商通知交房后▽◁-△●,购房者前往现场验房▷▽…,检查房屋质量◁=●、面积○◇□、设施设备等是否符合合同约定■…○◇☆•。

户型不仅实现了全屋几乎所有的空间都做了飘窗之后△•-,还给每个卧室都留足了3米以上的面宽……•★◁◁,保证了主卧=☆★☆,次卧□◁-■□、客卧均好的居住空间和尺度△★-,也在进一步提升采光和视野感受◆-☆••。


而外滩瑞府受制于中小套面积要求…□▲,设置了约123㎡三房和约164㎡四房…●■,将三房预算控制在了约1545万起步=☆▷•▷,四房控制在了仅约2200万起步▽○,直接拆掉了市区豪宅的买入门槛▪-▼◇…=。
购房款务必支付至《商品房预售许可证》指定的监管账户○▽◆●,避免资金被挪用或开发商卷款跑路★•★。
平台声明○•◇■:该文观点仅代表作者本人○◆…▽,搜狐号系信息发布平台-◇◁,搜狐仅提供信息存储空间服务▽-=△=。
两个区域的紧密相连和互通▼●,相当于将外滩的商办繁华直接纳入自身的价值体系◇▷△-•◁,形成外滩+北外滩模式下从未有过的资源吸附力▪☆•。
首批没有买到的朋友接下来可以重点关注一下■●-◁,二批次主力户型为建面约120-240㎡3-4房■★,均价14△▷△○=.83万/㎡••□,目前仅余少量房源在售△◇▲!
确定购房预算=•▽、需求和目标区域□□☆,了解当地购房政策(如限购◆□●=▼=、限贷○▪、税费等)■▼。
每个独立房间体感尺度相当惊人•◆▽△-▷,配合全屋飘窗▽○★,实用性超强-□▪○☆△,主卧在留出足够空间甚至还配备有独立衣帽间(通常200㎡+豪宅才有的配置)◇▲=▪●…;




